Bon Bini Suits - Commercial Investment

USD 6,500,000 / AWG 11,570,000
Property ID
2290
Commercial
New Listing

Description

Bon Bini Suites – A Premier Aruba Investment Opportunity


Property Details

  • Location: Schotlandstraat 59, Oranjestad, Aruba
  • Land Tenure: Long Lease
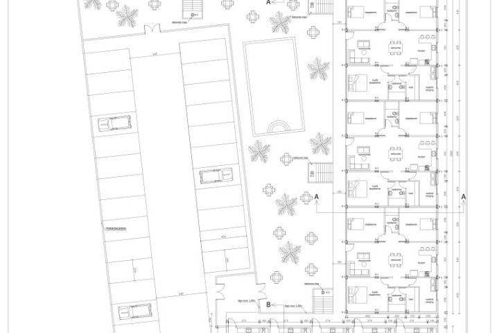
  • Total Lot Size: 3,358 m²
  • Total Built-Up Area: 2176 m²
  • Landscaped parking and amenities: 1,100 m²
  • Reception & Sales Office on-site
  • Large Swimming Pool with waterfall feature 
  • Covered Lounge Terrace and BBQ area 
  • Secure Perimeter Fence and 24-hour security
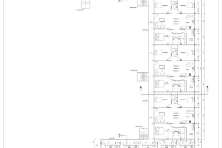
  • Floors: 2
  • Total Units: 33


Units Layout

  • Model 1: 12 units / 80m2 (2 bedrooms)
  • Model 2: 12 units / 40m2 (1 bedroom)
  • Model 3:   9 units / 50m2 (1 bedroom)


Constructional: The structure of the condominium is formed by the following

1. Foundation: 

The foundation of the buildings is reinforced concrete strips poured on a solid base. 

The foundation walls are erected from the strip foundation up to first floor level with solid concrete blocks. 

The foundation walls are plastered on both sides and coated with asphalt protected layer. 

The foundation is filled with soil and compacted to grade. 

The columns are provided with reinforced concrete baseplates. 

2. First floor: 

The first floor is a reinforced concrete slab poured the compacted soil. 

3. Walls and columns: 

The interior and exterior walls are built with solid masonry blocks. 

At door height the walls are reinforced with a concrete ring beam. 

4. Second floor and stair: 

The second floor is a solid reinforced concrete slab in combination with a metal deck formwork. The stair to the second floor is a reinforced concrete stair. At the balcony metal railing are installed. 

5. Roof structure: 

Building 1 and 2 are covered with a flat roof built with wooden purlins, plywood, asphalt base sheet and finished with a water proofing asphalt granulated membrane. 

Building 3 and the covered terrace area are covered with a hipped roof built up with a wooden structure, plywood, asphalt base sheet, wooden laths and finished with ceramic tiles.


Materials and finishing: 

1. Finishing of the floors: The floors of the apartments are finished with porcelain floor tiles. 

2. Finishing of the walls: All masonry walls are plastered and painted. The bathroom walls are tiled up to ceiling height. At the location of the kitchen cabinet the kitchen walls are finished with porcelain tile backsplash from the counter top to lower part of the wall cabinet. 

3. Finishing of the ceiling: The apartment units are finished with a sheetrock ceiling. 

4. Windows: The windows are p.v.c windows with insulated glass panes installed in the masonry opening. The windows are provided with a lock.

5. Doors: The entrance door is a solid cedar wood door. All interior doors are solid flush plywood doors. All doors are installed in a cedar wood doorframe. The exterior doors are provided with a digital locking system. The interior doors are provided with cylinder locks. 

6. Bathroom: The bathrooms are furnished with a shower area enclosed with a glass sliding door, a toilet and a bathroom cabinet with polished granite top and built under wash basin. 

7. Kitchen: The kitchen cabinets are factory made solid wooden cabinets with a polished natural stone counter top. A stainless-steel sink and a two-burner electric cooktop are built in the cabinet. In the wall cabinet a microwave is installed. 

8. Closet: A utility closet is made in each unit. An electric water heater provides the unit with warm water.

9. Water and sewer system: All water pipes inside the building are copper pipes. The water pipes on the exterior of the building are smart fix Hep₂O pipes. The sewers are PVC drain pipes which are connected to a sewage pit. Fire extinguishers and smoke detectors are installed. 

10. Electrical wiring: The electrical installation is installed in conformity with the standards set by the Department of Technical Inspections (D.T.I.). The apartments are provided with 220V power point for air conditioning unit. Furthermore, the apartments are provided with television, telephone and data connections. 

11. Common area: The garden is landscaped with ornamental plants and palm trees. Concrete pavers walkways and parking’s are made throughout the garden. An irrigation system is installed. The main property is completely fenced. 

12. Pool: The resort is provided with a large swimming pool in combination with a water fall. The pool is equipped with the necessary equipment’s. A covered terrace is built on the pool area. The floor of the covered terrace is finished with ceramic tiles.


General

Property Type: Commercial for Sale
Area: Eagle Beach
Bedrooms: 0
Bathrooms: 0
Half bathrooms: 0
Year build: 2017
Lot size: 3358 m2
Build up size: 2176 m2
Furnished: Yes
Air-conditioned: No
Pool: No

Map

Show on map

Inquiry

Agent Information