Arendstraat 122 - Mixed-use commercial and residential property

USD 920,000 / AWG 1,637,600
Property ID
2349
Bathrooms
4
Commercial
New Listing

Description

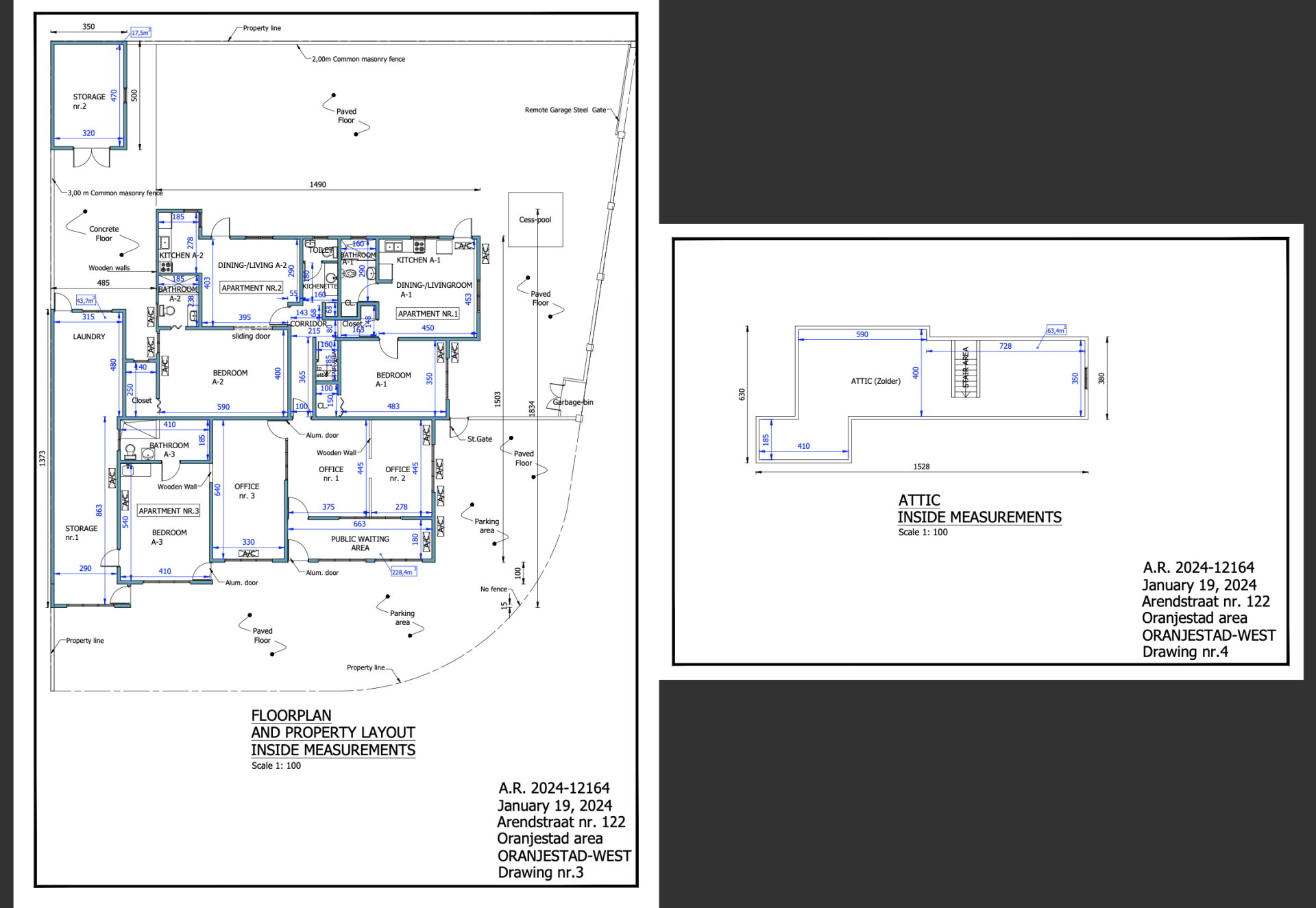
Mixed-use commercial and residential property located in Oranjestad-West, set on 723 m² of long-lease (erfpacht) land.

The property features office spaces, three independent residential apartments (with the option to add an extra apartment), and an attic, with an approximate total built-up area of 290 m².


Solid concrete construction, well maintained, with parking and storage areas.


Key features include:

  • Commercial office areas with functional layout

  • Public waiting area

  • Kitchenette

  • Commercial restrooms

  • Three self-contained residential apartments

  • Attic offering additional usable space

  • On-site parking and storage areas

  • Centrally located, minutes from downtown, airport, and hotel area


The property is currently undergoing improvements to enhance its overall condition and functionality, adding even greater value and appeal.

An excellent opportunity for dual income streams in a high-demand area.


General

Property Type: Commercial for Sale
Area: Oranjestad
Bedrooms: 0
Bathrooms: 4
Half bathrooms: 0
Lot size: 723 m2
Build up size: 290 m2
Furnished: No
Air-conditioned: Yes
Pool: No
Outbuilding size: 5 m2

Floor Plan

Map

Show on map

Inquiry

Agent Information